VENDITA APPARTAMENTO B011 R
APPARTAMENTO B011 R
Cristo Re in posizione strategica e ben collegata, vendiamo ufficio in fase di cambio di destinazione d'uso, con possibilità di realizzo di un trilocale o bilocale.
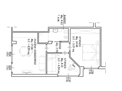
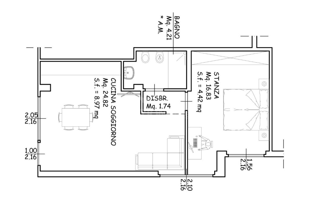
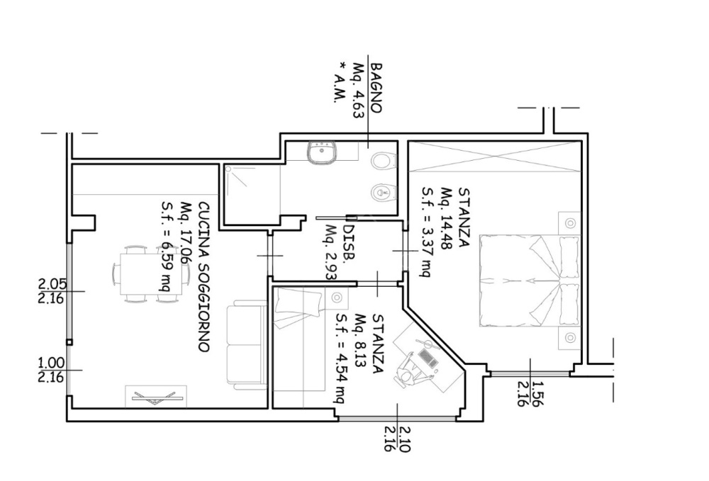
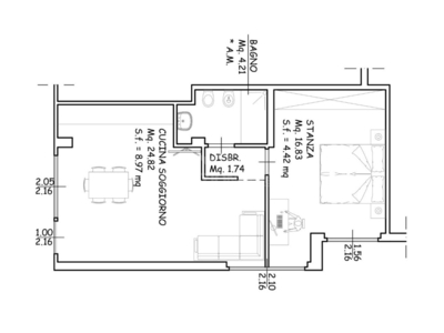
Soluzione trilocale: zona giorno con angolo cottura, due camere da letto una matrimoniale e una singola, un bagno moderno e un pratico disimpegno.Soluzione bilocale: ampia zona giorno con angolo cottura, camera matrimoniale e bagno. L'immobile si trova al piano terra di una palazzina in una tranquilla zona residenziale, vicinissima a tutti i principali servizi. Ottima soluzione d'investimento, adatta per la locazione, in particolare a studenti universitari grazie alla vicinanza con le principali sedi accademiche.
Prezzo: 185'000 €
Località: TRENTO
Zona: Cristo Re
M2: 52Esposizione: O - NPiano: TUltimo piano: NOStanze: 2Bagni: 1 CRiscaldamento: C con contacalorie
Ape: in corso di rilascioCondizioni: BUONO
Modulo richiesta planimetria / informazioni
Modulo richiesta prenotazione
|
Nicola Volani Agente REA: TN-229929 Tel: 0461391764 Email: nicola.volani@soluzionecasa.tn.it |
Ufficio sede Viale Rovereto, 5 -TN Viale Rovereto, 5 Trento Tel: 0461 391764 Fax: 04611632107 Email: info@soluzionecasa.tn.it |














